Verwaltungsgebäude Stuttgart

Sanierung eines Verwaltungsgebäudes — Stuttgart — 13.750 m² — 2028 — Land Baden-Württemberg

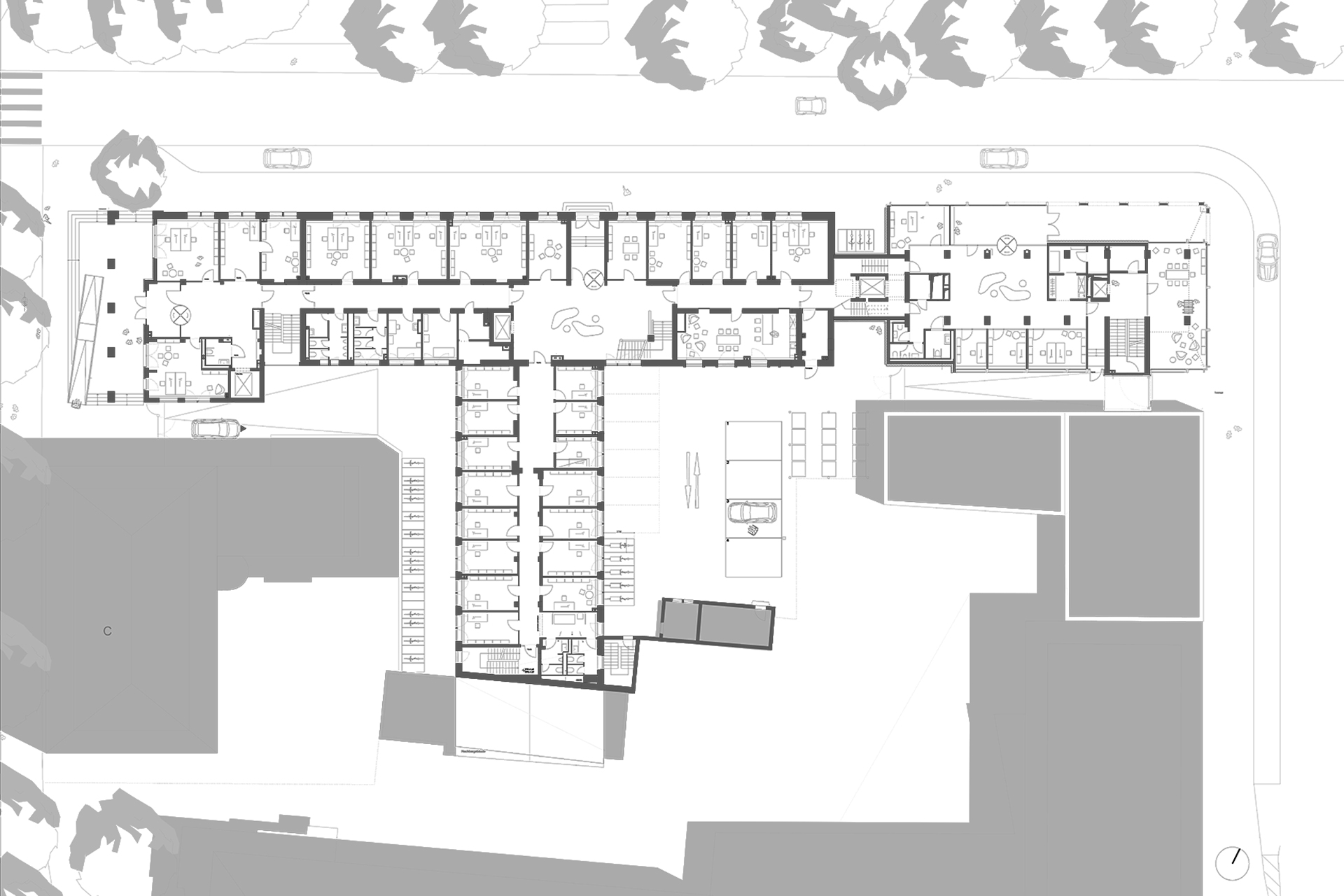
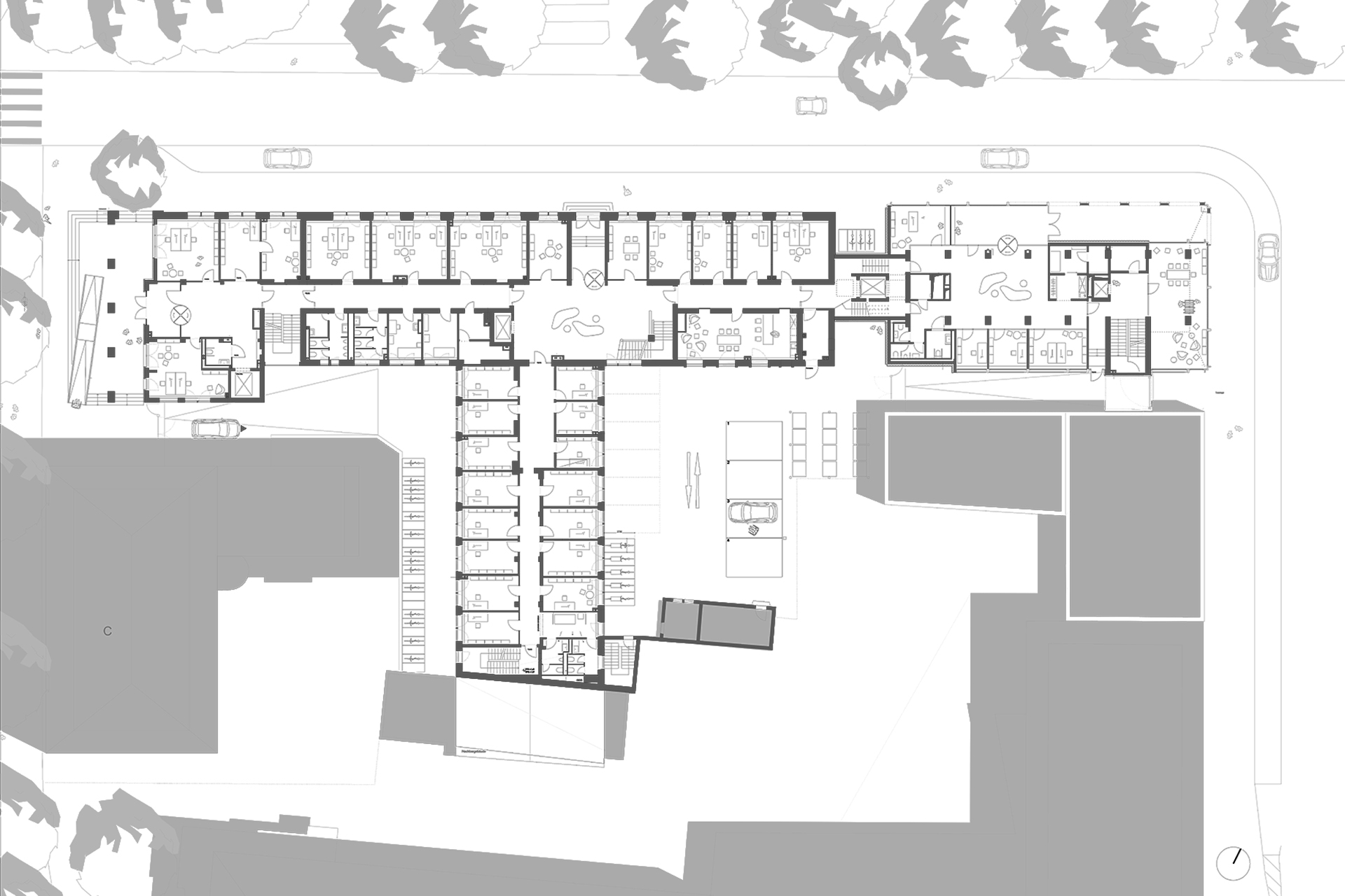
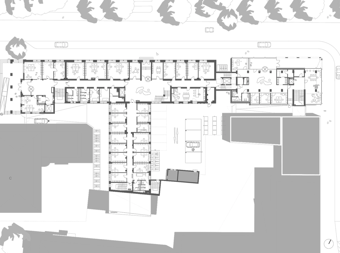
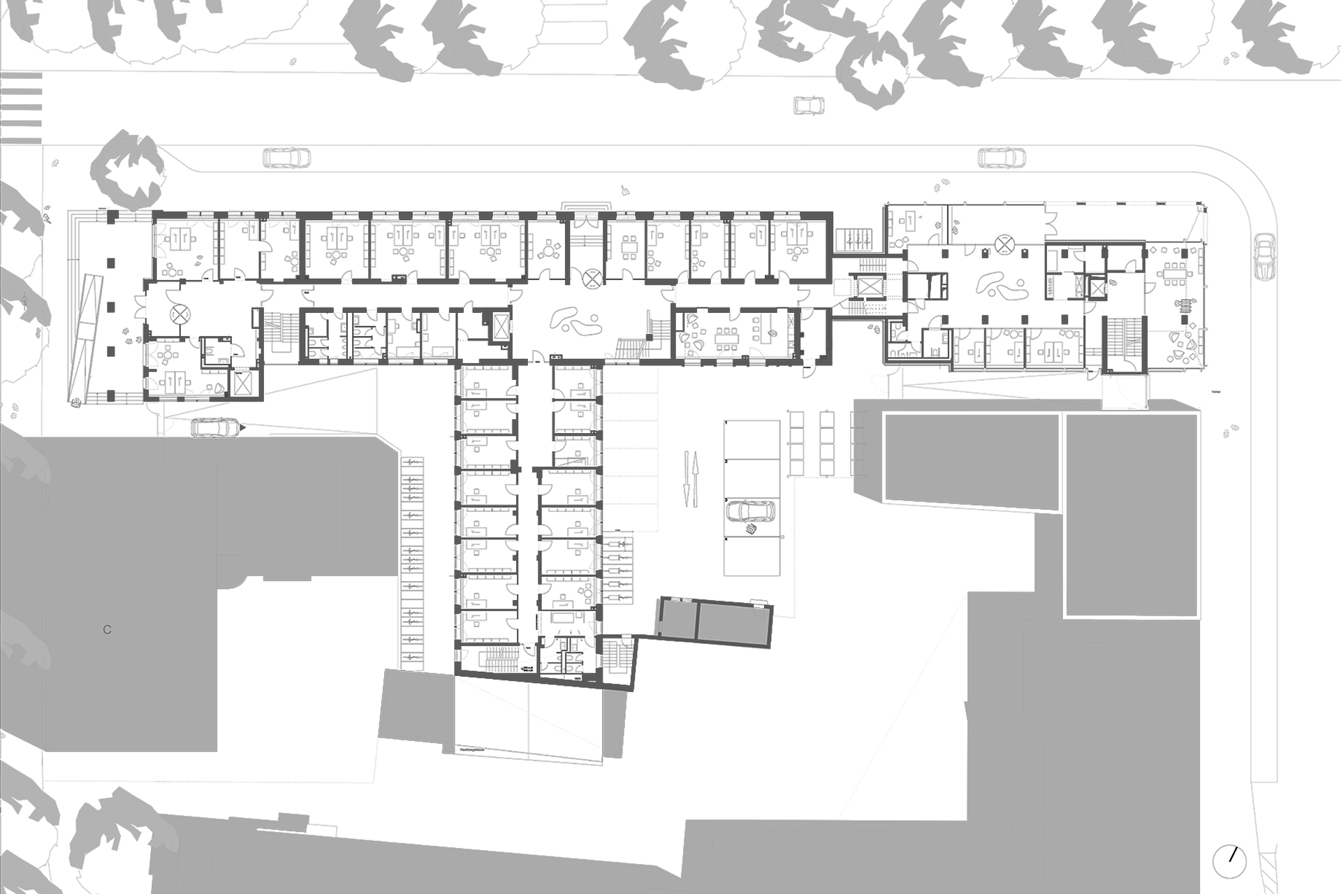
Nachhaltige Transformation: Verwaltungsbau für die Zukunft

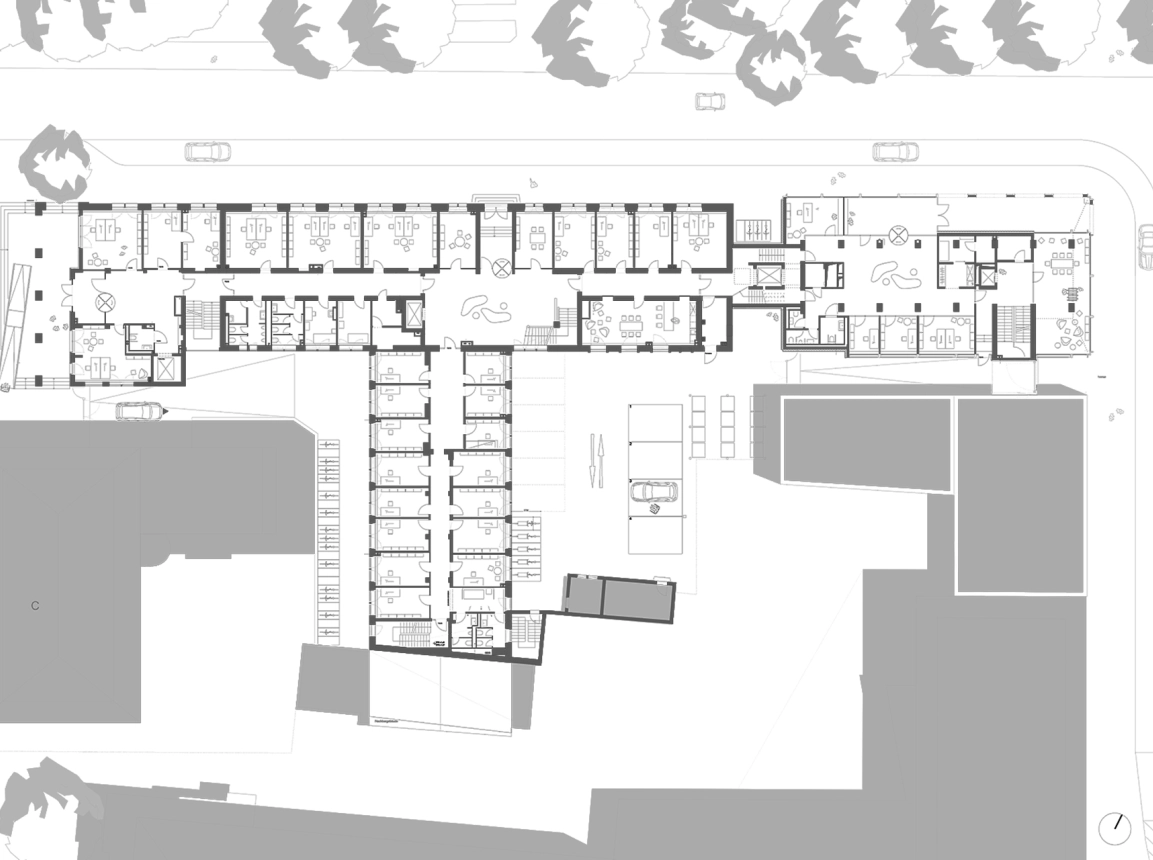
Aufgabe ist, das ehemalige Verwaltungsgerichtsgebäude umfassend zu sanieren und als Verwaltungsgebäude umzuplanen. Die Bauteile A und B, die zwischen 1937 und 1968 erbaut und mehrfach erweitert wurden, erhalten neue Büroräume, Besprechungszonen sowie barrierefreie Zugänge. Im Fokus stehen die energetische Sanierung der Fassaden, die Erneuerung der technischen Infrastruktur und ein modernes Erschließungskonzept. Organische Übergänge zwischen Bestand und Neuerung verbinden Funktionalität und architektonische Klarheit.

Ähnliche Projekte