Kulturelles Zentrum Brasov

Transformation eines ehemaligen Industriegeländes — Rulmentul, Brasov, Rumänien — 11.600 m²/ Freiflächen 111.500 m² — Stadt Brasov

Transformation

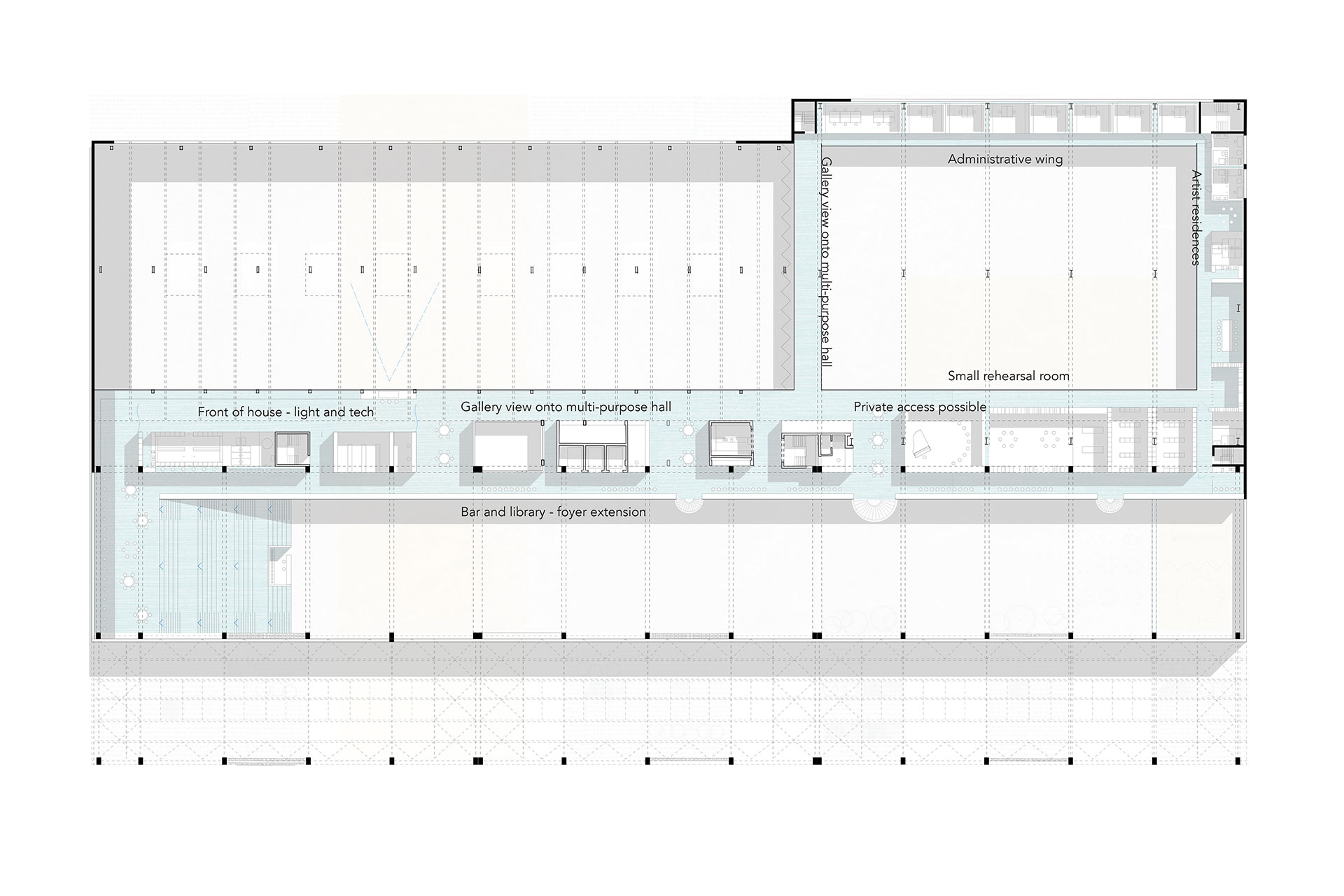
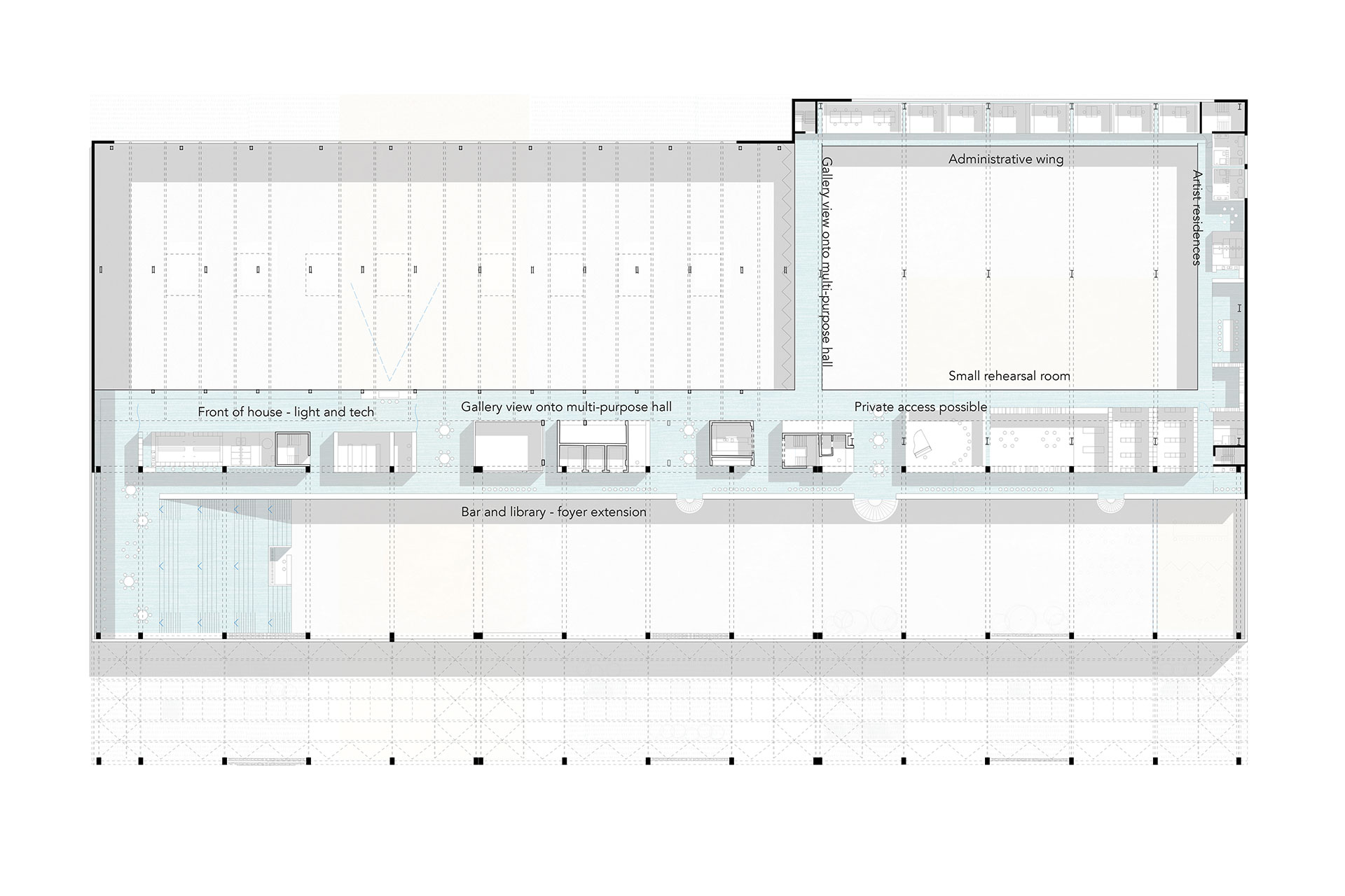
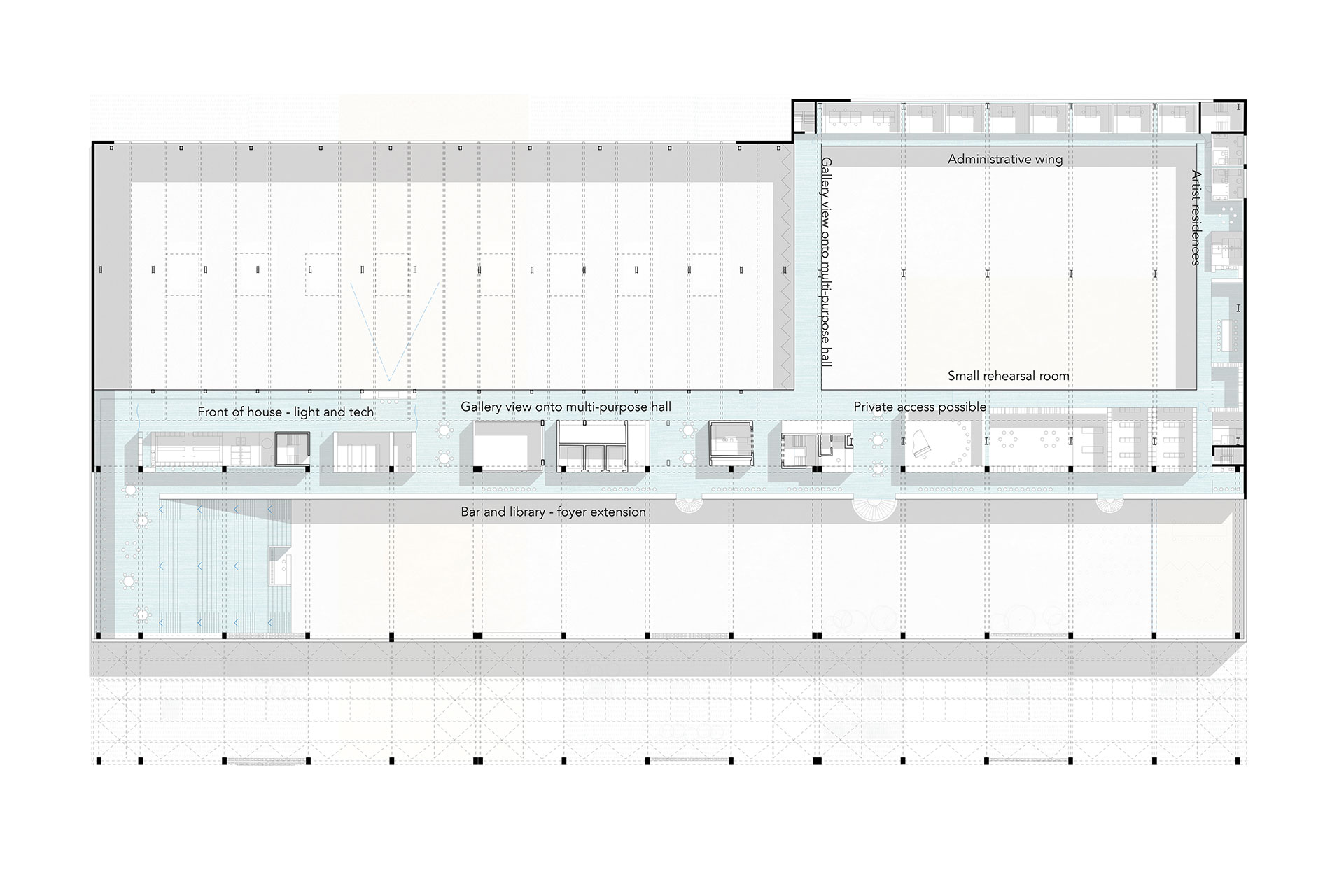
Ein ehemaliges Industriegelände wird als kulturelles Zentrum in einen Gemeinschaftsort überführt. Grünflächen und Vegetation bleiben erhalten und in das Design integriert. Ein zentraler Fahrrad- und Fußweg verbindet das Areal mit dem umliegenden Stadtviertel, über einen ikonischen Steg geht es in die direkte Nachbarschaft.
Die Architektur kombiniert bestehende Industriebauten mit flexiblen neuen Elementen und fördert Begegnungen, kulturelle Aktivitäten und nachhaltige Mobilität.

Ähnliche Projekte